• Work
  • About Me
  • Contact
  • Shop
Amanda Prachanronarong

not all paths are linear

  • Work
  • About Me
  • Contact
  • Shop

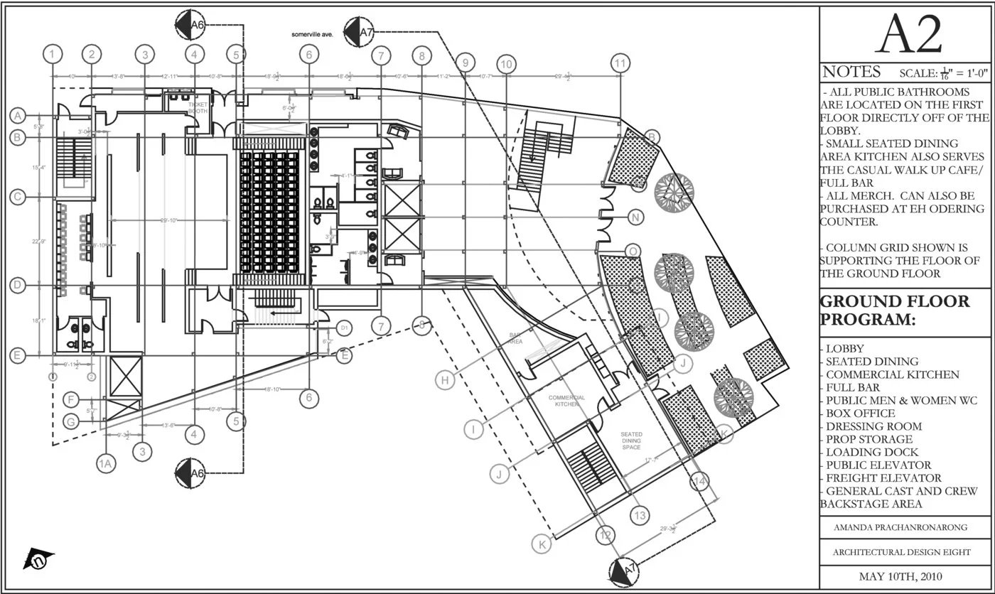
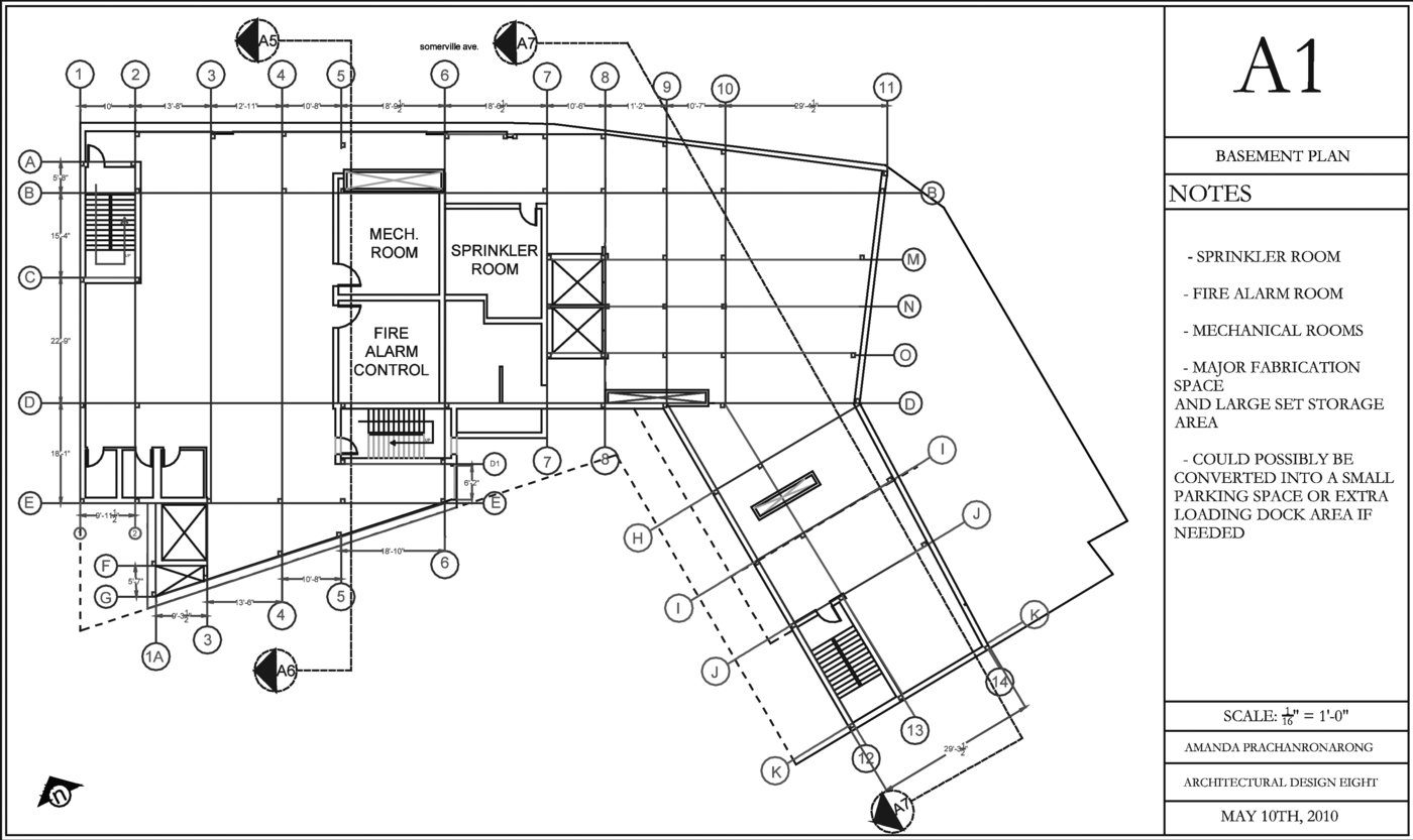
Union Square Community Theater

In Grad School, we really got into working through projects as if we would in real life. This exercise was to take an existing building with it’s lot and expand it’s purpose while integrating the exterior through landscape development. The goal was to do the same research, code analysis, and building development you would with a real project. Although I am not 100% happy with the design, I can say that you could easily build and develop this project based on the work I have done!

large_338767_fWIpv4xGdyMvEkX6qrgUKRtAh.jpg
338767_v1kGXKZcBbRIQA3r1uc2_hJ18.jpg
338767_n7S_GimpjnOi42GdwiaoGLtRz.jpg
large_338767_J6n4tRvQhRkhu4T5PpW2PWi22.jpg
1918609_512544750672_8103655_n.jpg
large_338767_qa5vDk3221HJTCYGVdtfOtbJL.jpg
large_338767_QTUQMB19gCHZsNsqE5bGKzeBf.jpg
large_338767_anAXWH6psy9fZKqNMVwSEoXR0.jpg
large_338767_1pDZ6CdyE3TZDwZHSOuN0eORb.jpg
large_338767_5hrXTVmyrWUuAVwWcRaXxcnwy.jpg
large_338767_04RReLTt_XVJV1PrGkLvgvmv5.jpg
large_338767_b0rIDyk2DepbIDuBJ0O9SyWHb.jpg
large_338767_eluyYsONvKaBWarbtwlDFQnxz.jpg
large_338767_SXpo_yjsl83fNVTvG9ya7HneY.jpg

Powered by Squarespace.